Le plan de masse est une pièce indispensable au dossier de permis de construire ou de déclaration préalable de travaux, qu’il s’agisse d’une construction neuve ou d’une rénovation.
La quantité d’éléments techniques qui doivent y figurer, ainsi que les règles locales du code de l’urbanisme qui peuvent s’appliquer, font du plan de masse une pièce complexe à réaliser.
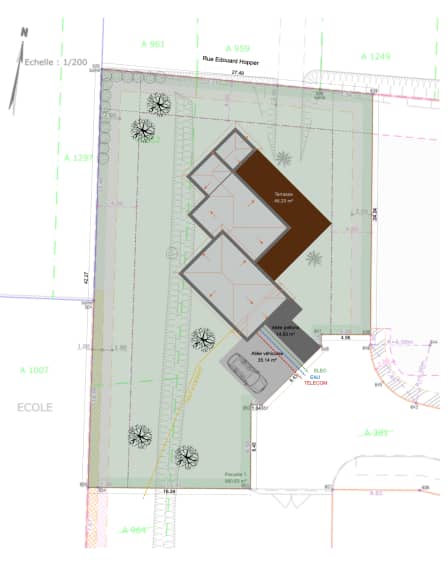
Cedreo permet cependant aux constructeurs de maisons individuelles et aux professionnels de la construction et de la rénovation de créer un plan de masse simplement et intuitivement. La fonctionnalité plan de masse fait partie du module “Terrain” dans Cedreo.
Alors, comment faire un plan de masse en ligne simplement ? On vous dit tout ici, en 8 étapes clés, détaillées pas à pas.
Etape 1 : Dessiner le terrain naturel et délimiter la parcelle
Une fois votre plan de cadastre ou plan de géomètre importé dans Cedreo, dessinez la parcelle de terrain concernée par le projet rapidement grâce à l’outil spécifique “Parcelle” du module Terrain disponible à partir du menu “Tracé” puis “Terrain naturel”. Vous pouvez ajouter des haies et des murets pour délimiter votre parcelle.

Etape 2 : Tracer les lignes de recul
Si certaines zones de votre foncier ne sont pas constructibles, ajoutez les lignes de recul. Le positionnement du bâti sur le terrain en sera facilité.
Etape 3 : Ajouter des points ou lignes d’élévation au terrain
A partir du menu “Terrain naturel”, avec les outils “points d’élévation” et “lignes d’élévation”, représentez les différents niveaux d’élévation du projet.
Comment ajouter des points d’altimétrie ou des lignes d’élévationEtape 4 : Tracer et positionner la maison sur le terrain
L’étape qui suit le dessin de la parcelle est le tracé de la maison et son positionnement sur le terrain. Un jeu d’enfant grâce aux outils du module terrain.
Comment implanter la maison sur le terrainEtape 5 : Ajouter les zones à déduire de la surface de pleine terre
Pour ajouter ou moduler des espaces fonctionnels sur votre parcelle et donc sur votre plan de masse, l’utilisation des régions et allées est conseillée. Vous pourrez alors choisir si vous souhaitez déduire ces zones de la surface de pleine terre. Les régions vous permettent de définir les parkings, cours, zones de végétation, etc. Et les allées peuvent être des allées de voiture, des allées piétonnes ou encore des allées de forme libre.
Dessiner les régions dans Cedreo Dessiner les allées dans CedreoEtape 6 : Gérer les retenues de terre
Cedreo inclut deux outils pour gérer les terrains en pente : le talutage et le mur de soutènement. Dans l’étape “Extérieur” ces outils sont disponibles par les menus “talutage” et “mur de soutènement”. Les murs de soutènement et les talutages se positionnent automatiquement sur les côtés sur lesquels vous cliquerez. Vous pourrez ensuite les personnaliser (type de mur, hauteur, épaisseur, modification du talutage point à point, etc.).
En savoir plus sur la gestion des retenues de terreEtape 7: Ajouter les annotations sur le plan
Vous avez la possibilité d’ajouter librement du texte, des flèches ou des pointillés sur votre plan 2D.
Tout sur les annotations du plan dans CedreoEtape 8: Générer le plan à l’échelle incluant le plan de masse
Depuis votre gestionnaire de projets vous pouvez imprimer vos plans selon l’échelle souhaitée sur le format de papier souhaité.

Maintenant que vous avez balayé toutes les étapes pour découvrir comment faire un plan de masse en ligne dans Cedreo, c’est à vous de jouer !
