Plans de coupe &
Plans de façade
Rien de plus simple que Cedreo pour créer des plans de coupe et des plans de façade.
Réduisez le temps nécessaire au dessin et gagnez en efficacité.
Lancez-vous rapidement
Cedreo est simple à utiliser et offre une interface intuitive pour tracer aussi vite que possible.
Profitez d’une meilleure organisation
Tous vos plans sont stockés au même endroit pour gagner en efficacité.
Aidez vos équipes à collaborer
Les plans de votre catalogue sont partageables entre les commerciaux et le bureau d’étude.
Créez vos plans de coupe et plans de façade
- Vos plans de coupe d’un simple clic : créez une coupe directement sur votre plan et prévisualisez le résultat simultanément
- Vos plans de façade, un jeu d’enfant: les façades sont automatiquement détectées. Sélectionnez simplement la vue adaptée et personnalisez-la
- Un même plan, plusieurs usages: ajoutez différents types d’informations et créez plusieurs versions d’un même plan
Des plans aussi détaillés que vous le souhaitez
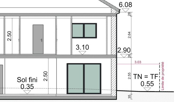
- Ajoutez des cotes: affichez en un clic les mesures d’élévation verticale du terrain naturel jusqu’à l’élément souhaité sur le plan
- Annotez vos plans: ajoutez autant d’annotations que vous le souhaitez et précisez avec des flèches
- Choisissez les éléments à afficher: choisissez d’afficher sur vos plans des produits de la bibliothèque 3D (cheminées, arbres, luminaires, etc.)


Des plans à l’échelle, téléchargeables à tout moment
- Affichez le nom de la vue: le nom que vous donnerez à la vue peut être affiché automatiquement sur le plan
- Définissez le format le plus adapté: avant de la télécharger, choisissez le format de votre plan, son orientation, et l’échelle la plus appropriée
- Une qualité idéale pour l’impression: vos plans sont téléchargeables en 300 dpi
Une seule vue pour tous vos plans
- Visualisez tout d’un coup: profitez d’une vue d’ensemble de tous les plans d’un même projet
- Ajouter un plan en un clic: ajoutez un plan d’étage, créez une nouvelle vue, ou créez plusieurs versions d’un même plan

Dessinez plus rapidement avec ces fonctionnalités
Créez des plans de coupe et des plans de façade avec des fonctionnalités simples et des tâches automatisées pour que vos équipes réduisent le temps nécessaire au dessin.

Réglage intuitif des coupes
Déplacez le trait de coupe directement sur votre plan d’étage et validez pour créer un plan de coupe automatiquement.

Cotes
Précisez votre plan en ajoutant des cotes d’élévation à partir du terrain naturel ou des cotes libres.

Annotations
Détaillez vos plans avec autant d’annotations que nécessaire et complétez en ajoutant des flèches.

Détection automatique des façades
Choisissez simplement la façade sur votre plan et personnalisez le cadrage nécessaire à votre vue.

Pré-visualisation simultanée
Préparez vos plans de coupe et façade en pré-visualisant le résultat final simultanément.

Mises à jour automatiques
Les modifications apportées à votre projet apparaissent automatiquement sur vos plans de coupe et de façade.
Combinez les fonctionnalités
Allez plus loin, Cedreo offre bien plus que les plans de coupe et les plans de façade. Découvrez ce que vous pouvez faire d’autre.

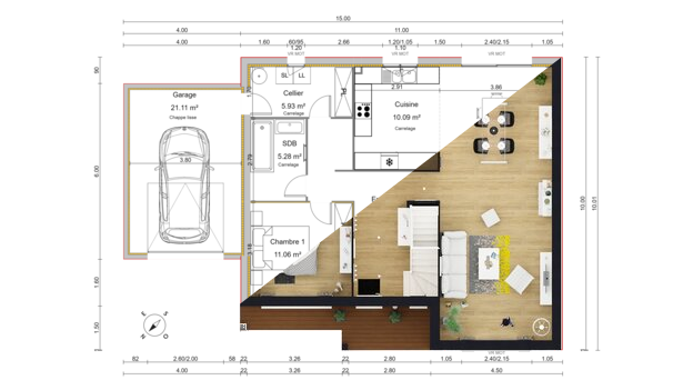
Plan d’étage
Créez des plans complets et précis pour vos projets de construction ou de rénovation.
En savoir plus
Plan de masse
Modélisez le terrain naturel et le terrain fini en moins de 20 minutes.
En savoir plus
Tableaux de surfaces
Obtenez automatiquement les tableaux de surfaces de vos projets.

Catalogue de plans
Partagez les plans entre les membres de votre équipe pour un travail plus collaboratif.
En savoir plus
Documents de présentation
Créez et personnalisez vos documents de présentation APS ou PC.
En savoir plusQuestion fréquentes
Combien de plans de coupe ou de façade puis-je créer avec Cedreo?
Pour un même projet, vous pouvez créer autant de plans de coupe et de plans de façade que vous le souhaitez.
Puis-je créer plusieurs versions d’un même plan?
Oui. Pour un même projet, il est tout à fait possible de créer plusieurs versions d’un plan de façade par exemple: l’une des versions sera annotée et cotée par exemple, et l’autre peut ne contenir que la vue graphique, sans annotation.
Quels éléments sont affichés sur les plans de façade Cedreo?
Tous les éléments nécessaires au plan de façade tel que demandé dans les documents de permis de construire peuvent être affichés:
- Cotes et annotations
- Toitures et panneaux solaires
- Portes et fenêtres
- Eléments architecturaux propres au bâtiment tels que cheminées, moulures, gardes corps etc.
- Revêtements de façade
- Certains éléments que vous jugerez pertinents d’afficher ou non: arbres, luminaires, etc.
Mes plans sont-ils imprimables en grand format?
Cedreo vous laisse la possibilité de choisir la définition – et donc le niveau de qualité de vos plans – au moment du téléchargement.
- 72 dpi: recommandé pour les usages numériques, optimisé pour un affichage du plan en entier
- 300 dpi: format recommandé pour l’impression, idéal s’il vous est nécessaire de zoomer sur le plan


