Plan de masse
Caractéristiques, détails et exemples: tout ce qu’il faut savoir avant de se lancer dans le dessin d’un plan de masse.

Qu’est-ce qu’un plan de masse ?
Essentiel au dossier de permis de construire ou à la déclaration préalable de travaux, le plan de masse est un dessin à l’échelle qui cartographie toutes les composantes qui existent dans les limites d’une propriété :
- Les limites de terrain et de construction
- Les lignes de recul
- La topographie du terrain
- Le bâti
- Les accès
- Les aménagements extérieurs
- Les réseaux
- Les plantations
- L’échelle et la rose des vents
Une représentation détaillée de la parcelle de terrain
Le plan de géomètre donne une idée précise de la nature du terrain, de ses dénivelés, de ses talus, etc. Les aménagements extérieurs peuvent également figurer sur le plan de masse. Il s’agit de tous les espaces qui ne seront pas compris comme surface de pleine terre : garage, allée, terrasse, piscine, abri de jardin…
Il est aussi important de bien représenter les plantations existantes mais également celles du projet à venir pour préparer la demande de permis de construire ou la déclaration préalable de travaux. Les règles du PLU peuvent par exemple réglementer l’abattage d’arbres ou la plantation d’espaces verts.


Zoom sur le tracé du bâti
Qu’il s’agisse d’un projet de construction ou de modification du volume d’un bâtiment existant, les différents bâtis doivent figurer sur le plan de masse plan de masse coté dans les 3 dimensions (longueur, largeur, hauteur). Il s’agit donc de la maison mais aussi de tous les autres bâtiments du terrain comme le garage, les dépendances, etc. Il est aussi important de distinguer le bâtiment principal de ses annexes.
En savoir plus sur le tracé du plan de maisonVisualisation 3D
En tant que tels, le plan de masse et les plans 2D ne permettent pas aux acquéreurs de se projeter facilement dans leur projet de construction ou de rénovation. Un rendu 3D de l’ensemble du projet permet de visualiser en 3D la parcelle, avec la construction, ses aménagements extérieurs, des plantations, du mobilier, etc. Les acquéreurs se projettent immédiatement. La visualisation 3D s’avère être un redoutable outil d’aide à la vente pour les constructeurs de maisons individuelles et les maîtres d’œuvre.
En savoir plus sur les rendus 3D
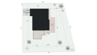
Exemples de plans de masse
Voici quelques exemples de plans de masse tracés avec Cedreo.

Plan de masse – Construction neuve

Plan de masse avec aménagement paysager

Plan de masse extension de maison

Plan de masse 2D

Plan de parcelle en 3D

Plan de masse avec végétation
Caractéristiques du plan de masse
Indispensable à la demande de permis de construire ou à la déclaration préalable de travaux, le plan de masse doit inclure toutes les composantes qui existent dans les limites d’une propriété, qu’il s’agisse d’une rénovation ou d’une construction neuve.
Limites de propriété
Les limites du terrain ainsi que les lignes de recul qui matérialisent la zone constructible, doivent être indiquées. Le code de l’urbanisme et les législations locales s’appliquent ici.
Accès
Le plan de masse doit aussi permettre de visualiser les accès au terrain et à la maison afin que services de l’urbanisme vérifient les servitudes et règles de sécurité.
Réseaux
Les différents réseaux devront également apparaître pour une représentation complète du projet : alimentation en eau potable, gaz et électricité, réseaux d’évacuation des eaux usées et pluviales. Des symboles peuvent être ajoutés pour les matérialiser sur le plan.
Bâti
Le plan de masse permet de localiser les constructions à créer ou existantes si leur volume est modifié. Leurs dimensions doivent également apparaître.
Altimétrie du terrain
Les côtes altimétriques peuvent être nécessaires sur un plan de masse. Un géomètre doit lever les points de références du terrain en amont de la construction.
Echelle et rose des vents
Un plan de masse complet inclut l’échelle et la rose des vents qui indique l’orientation des constructions existantes ou à créer.
Aménagement et plantations
Les zones d’aménagement peuvent être matérialisées : allées, terrasses, piscine, etc. Les plantations, arbres, arbustes ou zones végétalisées sont parfois nécessaires au plan de masse pour représenter l’aménagement du terrain fini.
Côtes et dimensions
Selon l’article R*431-9 du Code de l’urbanisme, le plan de masse doit être coté dans les trois dimensions, c’est-à-dire qu’il doit indiquer la largeur, la longueur et la profondeur du projet par rapport au terrain naturel.
Questions fréquentes sur le plan de masse
Quelle différence entre plan de masse et plan de situation ?
Le plan de masse représente la parcelle de terrain sur laquelle se trouve le projet de constructions neuves ou de constructions existantes.
Le plan de situation indique la localisation du projet sur le plan cadastral de la ville ou de la commune ou sur une carte IGN. Les parcelles voisines, les bâtiments existants et les accès au terrain sont identifiables.
Ces deux documents sont indispensables à toute demande de permis de construire ou déclaration préalable de travaux.
Quel est le meilleur logiciel de plan de masse ?
Cedreo permet de tracer un plan de masse très intuitivement. Cedreo est dédié aux constructeurs de maisons individuelles et aux professionnels de la rénovation qui l’utilisent pour créer facilement des rendus intérieurs et extérieurs en 2D et 3D en moins de 2 heures. Cedreo est 100% en ligne : vous pouvez accéder à vos plans de n’importe où, tant que vous disposez d’une connexion Internet.
Comment faire un plan de masse ?
L’utilisation d’un logiciel professionnel est nécessaire pour faire un plan de masse. Etant donnée la complexité de ce type de plan et les éléments techniques nécessaires qui doivent y figurer, le choix d’un logiciel simple et intuitif est clé pour le bon déroulement du projet.
Comment faire un plan de masse dans Cedreo ?Quelle est l’échelle d’un plan de masse ?
L’échelle à utiliser pour un plan de masse dépend de la taille du projet ainsi que de la taille de la parcelle de terrain concernée. Les échelles 1/200 (1 m = 0,5 cm) ou 1/100 (1 m = 1 cm) sont les plus fréquemment utilisées.