Cele mai bune 10 software de proiectare a planurilor rezidențiale

28/08/2024

Indiferent dacă sunteți un constructor de case, un remodelator sau un designer de interior, folosirea celui mai bun software pentru planificare vă va ușura mult munca.

Programul de proiectare potrivit va face mai mult decât să economisiți timp, bătăi de cap și bani. Vă va ajuta să obțineți mai mulți clienți. De aceea este important să alegeți cu înțelepciune.

Există multe opțiuni de software pentru planificarei. Cum îl poți găsi pe cel care va funcționa cel mai bine pentru tine și afacerea ta?

În următoarele 10 minute, veți afla tot ce trebuie să știți pentru a face alegerea corectă.

Să începem!

Cum să alegi cel mai bun software pentru proiectare

Există multe opțiuni diferite de software pentru plan rezidențial, cu o gamă largă de caracteristici. Nu toate vor fi alegerea potrivită pentru afacerea dvs. Așadar, iată 5 lucruri pe care ar trebui să le țineți cont atunci când alegeți:

1. Utilizabilitate

 Cât de ușor este de utilizat? Aveți nevoie de un fundal extins în design și de ani de școlarizare pentru a-l folosi eficient? Acesta este cazul multor programe profesionale de proiectare CAD sau BIM. Alte programe de proiectare pot să nu aibă unele dintre caracteristicile avansate de personalizare, dar sunt mai ușor de utilizat.

2. Accesibilitate

În cât ești dispus să investeștisoftware de proiectare? Marile firme de construcții vor bugeta, de obicei, programe scumpe cu care echipa de proiectare poate lucra. Afacerile contractante mai mici și renovatorii de case beneficiază adesea de un software mai prietenos cu bugetul, care are încă instrumentele de proiectare necesare.

3. Funcționalitate

Ce trebuie să facă software-ul? Doar creați planuri 2D? Majoritatea profesioniștilor din domeniul locuințelor ar beneficia de funcționalități suplimentare. De aceea, cel mai bine este să căutați un software modern pentru modele precum Cedreo.Un software precum Cedreo vă oferă instrumente importante de proiectare care sunt ușor de utilizat, astfel încât să puteți redimensiona planurile de etaj, să adăugați mai multe niveluri, să desenați și să imprimați la scară și să calculați rapid suprafețele. În plus, Cedreo vă oferă tot ce aveți nevoie pentru a produce planuri de etaj 3D și redări fotorealiste.

4. Scalabilitate

Pe măsură ce afacerea dvs. crește, programul de proiect va putea ține pasul? Căutați opțiunea de a adăuga cu ușurință membri suplimentari ai echipei în contul dvs. Și acordați o atenție deosebită stabilirea prețurilor pentru scalarea funcționalității programului.

5. Vă susține

În plus, asigurați-vă că luați în considerare opțiunile de asistență disponibile pentru dvs., cum ar fi dacă tutorialele și videoclipurile online sunt, de asemenea, disponibile. Și mai bine, unele software au o echipă de succes a clienților care să vă ajute cu proiectele dvs.

Cele mai bune 10 soluții software Blueprint (inclusiv caracteristici cheie)

Așadar, haideți să ne uităm la 10 dintre cele mai bune soluții software pentru plan rezidențial pentru a găsi cea care va funcționa cel mai bine pentru afacerea dvs. Să începem cu un program la care trec din ce în ce mai mulți profesioniști în domeniul locuințelor.

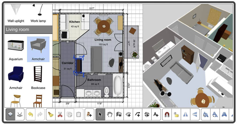
1. Cedreo

Cedreo UI shot of the floor plan step

Cedreo este cel mai important software pentru modele 3D la care trec mai mulți constructori, remodelatori și designeri. Este greu să găsești un alt program cu o combinație atât de grozavă de instrumente de proiectare a casei 2D și 3D care să fie ușor de utilizat!

De fapt, cu Cedreo poți proiecta o casă întreagă de la început până la sfârșit, cu planuri 2D și randări 3D în doar două ore!

Începe cu o interfață intuitivă care are instrumentele puternice de care aveți nevoie, fără a fi prea copleșitor. Importați un plan existent sau începeți planurile de la zero – în orice caz, este nevoie de doar câteva clicuri pentru a crea un aspect simplu.

Cedreo are, de asemenea, o bibliotecă extinsă care este inclusă în toate versiunile plătite ale programului – nu sunt necesare suplimente! Are peste 7.000 de opțiuni pentru mobilier, decorațiuni și materiale.

Odată ce planul dvs. este terminat, sunt doar câteva clicuri pentru a crea randări fotorealiste de înaltă calitate. Acestea sunt perfecte pentru a ajuta clienții potențiali să vizualizeze proiectul terminat.

Și pe măsură ce echipa ta crește, la fel și Cedreo. Adăugați membri suplimentari ai echipei cu planul de întreprindere, astfel încât toată lumea să poată colabora la proiecte prin intermediul software-ului bazat pe cloud.

Dacă apar întrebări, ajutorul este ușor de găsit. Pe lângă tutorialele video și instruirea individuală, puteți contacta managerul de succes dedicat pentru ajutor personalizat. Se vor asigura că primești răspunsurile tale, astfel încât proiectele tale să nu fie întârziate.

Caracteristici cheie:

  • Importați toate planurile existente
  • Copiați și reutilizați modelele pentru a economisi timp
  • Vizualizați planuri 2D și 3D simultan
  • Imprimați planuri la scară
  • Nu există limită pentru numărul de proiecte pe care le puteți crea
  • Capacități avansate de proiectare pentru elemente precum tavanele coborâte sau acoperișurile cu pante multiple
  • Personalizați aproape fiecare element de design, de la mobilier la ferestre
  • Compatibil cu Windows și Mac
  • Procesarea bazată pe cloud nu vă blochează computerul
  • Decorarea cu un singur clic vă economisește mult timp
  • Creați randări 3D în 5 minute
  • Disponibil în engleză, spaniolă, franceză, germană, italiană și română

Preț: Există un plan Cedreo care se potrivește oricărui buget. Consultați planurile noastre aici

Înscrieți-vă pentru a cont gratuit și începeți să proiectați astăzi

2. SketchUp Pro

sketchup illustration


SketchUp Pro este o platformă populară de modelare 3D cu o mare varietate de utilizări. Deși nu este conceput în mod special ca software de proiectare, vă permite să creați atât planuri 2D, cât și 3D.

SketchUp Pro funcționează bine pentru a vă prezenta proiectul cu explicații interactive 3D. În plus, cu câteva extensii suplimentare, puteți chiar să creați randări 3D impresionante pentru proiectele dvs.

Deci, da, puteți produce modele și schițe de acasă de calitate cu SketchUp Pro, dar are o curbă abruptă de învățare. Acest lucru este valabil mai ales dacă nu aveți multă experiență anterioară CAD 3D.

Și veți vedea rapid că pentru a crea lucruri precum randări 3D, va trebui să achiziționați suplimente suplimentare (care uneori pot fi la fel de scumpe ca și SketchUp Pro însuși!)

Caracteristici cheie:

  • Instrumente avansate de modelare 3D
  • Creați planuri profesionale 2D
  • Catalog 3D cu mii de obiecte
  • Abilitatea de a crea randări 3D cu achiziționarea de suplimente
  • Instrumente de raportare
  • Instrumente interactive de prezentare

Preț:

  • Shop 199 USD/an – Proiecte personale
  • Pro 299 USD/an – Utilizatori profesioniști
  • Studio 1.199 USD/an – Pentru fluxuri de lucru avansate

3. AutoCAD

Screenshot AutoCAD website

Pentru o lungă perioadă de timp, AutoCAD a fost standardul de aur pentru programele profesionale CAD. Arhitecții, inginerii și designerii se bazează pe aceasta pentru a crea desene detaliate în 2D și 3D.

AutoCAD oferă o gamă vastă de funcții de personalizare care vă permit să creați desene extrem de precise. De asemenea, include o gamă largă de plugin-uri și extensii pentru a îmbunătăți și mai mult capacitățile programului.

Cu toate acestea, există câteva dezavantaje de care trebuie să fiți conștienți. AutoCAD are o curbă de învățare abruptă și necesită adesea ani de experiență pentru a utiliza eficient toate funcțiile sale avansate. În plus, prețul său poate fi prohibitiv pentru micile afaceri.

Caracteristici cheie:

  • Instrumente avansate de desen 2D și 3D
  • Compatibil cu Windows și Mac
  • Capacități de personalizare extinse
  • Abilitatea de a crea planuri extrem de detaliate
  • Integrare cu alte aplicații Autodesk
  • Instrumente de colaborare în timp real

Preț:

  • AutoCAD LT 50 USD/lună
  • AutoCAD 220 USD/lună

4. Floorplanner

Screenshot Floorplanner website

Dacă nu sunteți un expert CAD și doriți un software pentru planuri care este ușor de utilizat, Floorplanner ar putea fi, de asemenea, o alegere bună. Interfața sa intuitivă este ușor de utilizat chiar de la început, permițându-vă să creați și să decorați rapid amenajări interioare simple. Floorplanner are, de asemenea, o bibliotecă mare de design cu tone de mobilier și opțiuni de decorare diferite pentru a vă satisface latura creativă.

Cu toate acestea, caracteristicile sale pot fi prea limitative pentru constructorii și remodelatorii de case. Deoarece se concentrează pe amenajările interioare, există instrumente limitate pentru crearea acoperișurilor și a designului peisajului. În plus, randările nu sunt cele mai realiste, mai ales când vine vorba de texturi și efecte de iluminare naturală.

Caracteristici cheie:

  • Instrumente de layout ușor de utilizat
  • Bibliotecă 3D mare
  • Creați planuri de etaj 3D și randări 3D
  • Software bazat pe cloud
  • Aplicații pentru mobil

Preț:

Pentru persoane fizice:

  • BASIC: Gratuit
  • PLUS: 5 USD/lună
  • PRO: 29 USD/lună

Pentru companii:

  • ECHIPĂ: 59 USD/lună
  • AFACERI: 179 USD/lună
  • ENTERPRISE: 599 USD/lună

5. Planner 5D

Planner 5D software

Planner 5D este un software de proiectare intuitiv și ușor de utilizat, care permite utilizatorilor să creeze planuri de etaj și modele 3D fără a necesita cunoștințe tehnice avansate. Este ideal pentru proprietarii de case, designeri de interior și agenți imobiliari care doresc să vizualizeze și să planifice spațiile lor.

Planner 5D oferă o gamă largă de caracteristici, inclusiv opțiuni pentru a crea planuri de etaj 2D și 3D, adăugarea de mobilier și decor, și generarea de randări 3D. De asemenea, include o aplicație mobilă pentru acces facil din orice locație.

Caracteristici cheie:

  • Interfață intuitivă și ușor de utilizat
  • Creați planuri de etaj 2D și 3D
  • Adăugați mobilier și decor
  • Generați randări 3D
  • Aplicație mobilă disponibilă

Preț:

  • BASIC gratuit
  • VERSIUNEA PĂTITĂ 6,99 USD/lună, 15,99 USD/an sau 24,99 USD pentru un cont premium (pentru totdeauna)

6. SmartDraw

Screenshot home page smart draw

Smartdraw este o aplicație de desen bazată pe web, care poate fi folosită pentru mai mult decât pentru planuri 2D. Este conceput pentru a crea o varietate de diagrame, diagrame și planuri. În plus, se integrează cu instrumente terțe precum Google Drive și Office.

Ca program de schițe, SmartDraw are o mulțime de caracteristici frumoase pentru crearea de planuri 2D, cum ar fi șabloane prefabricate, o bibliotecă de simboluri arhitecturale și capacitatea de a desena și de a imprima la scară.

Cu toate acestea, nu există instrumente 3D. Și din moment ce planurile și randările 3D devin o parte din ce în ce mai importantă a prezentărilor de proiecte profesionale, SmartDraw nu este suficient pentru majoritatea profesioniștilor din domeniul locuințelor.

Caracteristici cheie:

  • Simboluri arhitecturale pentru HVAC, instalații sanitare, electrice etc.
  • Instrumente intuitive
  • Aplicații pentru mobil
  • Planuri ușor de partajat cu instrumente integrate de stocare în cloud

Preț:

  • INDIVIDUAL 9,95 USD pe lună
  • TEAM Începe de la 5,95 USD per utilizator, pe lună (minimum 5 utilizatori)
  • ENTERPRISE Începe de la 2.995 USD pe an

7. Edraw Max

Screenshot Edraw Max website

Edraw Max este un instrument de diagramă similar cu SmartDraw. Vă permite să creați o mare varietate de diagrame, grafice și chiar planuri 2D de bază.

Cu toate acestea, deoarece nu este strict un program plan, veți fi limitat cu ceea ce puteți face. Nu intenționați să creați planuri de etaj 3D, vizualizări fotorealiste sau altceva decât planuri 2D de bază.

Caracteristici cheie:

  • Creați hărți mentale, diagrame de flux și alte diagrame
  • Funcționează pe Mac, Windows și Linux
  • Instrumente de glisare și plasare ușor de utilizat
  • Șabloane prefabricate

Prețuri

  • INDIVIDUAL 99 USD/an
  • TEAM 119 USD/an pentru 2 dispozitive

8. Sweet Home 3D

Sweet home 3D app

Sweet Home 3D este un software gratuit și ușor de utilizat pentru designul interior, care permite utilizatorilor să creeze rapid și eficient planuri de etaj și modele 3D. Deși nu este la fel de avansat ca unele dintre celelalte opțiuni de pe această listă, Sweet Home 3D este excelent pentru cei care doresc să își planifice și să își vizualizeze spațiile fără a cheltui mulți bani.

Interfața sa simplă și intuitivă permite utilizatorilor să adauge și să personalizeze mobilierul, pereții și alte elemente de design cu ușurință. De asemenea, oferă opțiuni pentru a importa planuri existente și a crea randări 3D.

Caracteristici cheie:

  • Gratuit și ușor de utilizat
  • Interfață simplă și intuitivă
  • Adăugați și personalizați mobilierul și alte elemente de design
  • Importați planuri existente
  • Creați randări 3D

Preț:

  • Gratuit (versiunea de bază)
  • Donare sugerată pentru acces la caracteristici suplimentare

9. RoomSketcher

Screenshot RoomSketcher website

RoomSketcher este un software de proiectare ușor de utilizat, ideal pentru crearea de planuri de etaj și modele 3D. Este folosit în principal de designeri de interior, agenți imobiliari și proprietari de case care doresc să vizualizeze și să planifice spațiile lor.

RoomSketcher oferă o gamă largă de caracteristici, inclusiv opțiuni pentru a crea planuri de etaj 2D și 3D, adăugarea de mobilier și decor, și generarea de randări 3D. De asemenea, include o aplicație mobilă pentru acces facil din orice locație.

Caracteristici cheie:

  • Interfață ușor de utilizat
  • Creați planuri de etaj 2D și 3D
  • Adăugați mobilier și decor
  • Generați randări 3D
  • Aplicație mobilă disponibilă

Preț:

  • BASIC: Gratuit
  • VIP: 49 USD/an
  • PRO: 99 USD/an

10. Roomle

Screenshot Roomle website

Roomle a fost creat în primul rând ca o modalitate de a planifica amenajările de mobilier și de a prezenta produse de mobilier. Pentru a face acest lucru, Roomle are o combinație de planificator de cameră 2D/3D care vă permite să creați un plan de etaj interactiv.

Roomle este foarte ușor de utilizat și poate fi accesat de pe mai multe dispozitive, făcându-l ideal pentru cei care doresc să vizualizeze și să ajusteze designul casei lor din mers. Platforma bazată pe cloud înseamnă că proiectele dvs. sunt accesibile de oriunde, fără a fi nevoie de instalări complicate sau de echipamente specializate.

Deși acest lucru ar putea funcționa bine pentru unii decoratori de interior, majoritatea profesioniștilor din domeniul locuințelor necesită funcționalități suplimentare, cum ar fi imprimarea planurilor 2D la scară, instrumente de design peisagistic și randări exterioare. Roomle se concentrează în principal pe amenajările interioare și mobilier, ceea ce poate fi o limitare pentru utilizatorii care au nevoie de funcționalități mai complexe și detaliate.

Caracteristici cheie:

  • Ușor de folosit
  • Funcționează pe mai multe dispozitive
  • Planuri 3D interactive
  • Software bazat pe cloud

Prețuri:

  • Roomle este gratuit

Ce software de proiectare Blueprint este potrivit pentru tine?

Indiferent dacă sunteți constructor, remodelator sau proiectant, cel mai bun software de proiectare ar trebui să vă economisească timp, bani și bătăi de cap. Tot mai mulți profesioniști din domeniul locuințelor aleg Cedreo. Combinația sa unică de caracteristici puternice, instrumente ușor de utilizat și redări fotorealiste uimitoare este greu de depășit.

De ce să așteptați? Faceți schimbarea astăzi și alăturați-vă profesioniștilor care își extind deja afacerile cu Cedreo. Încercați-l gratuit acum!